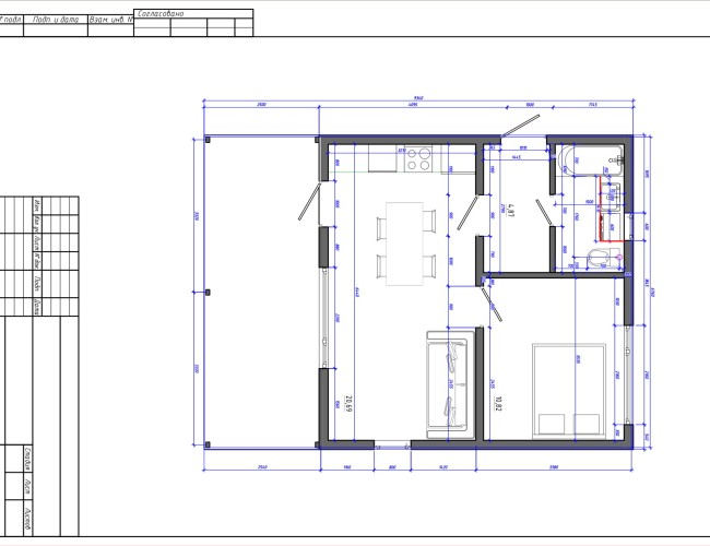
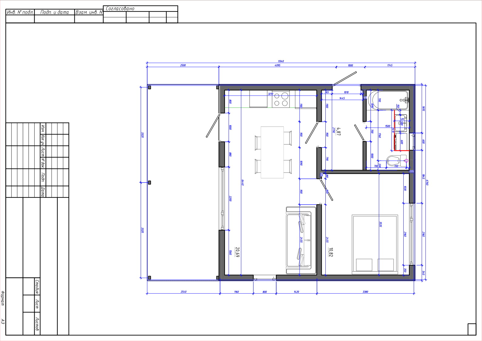
Площадь:
47 м2
Количество модулей:
2
Размеры Д*Ш:
6,84 м * 6,84 м
Высота потолков:
2,65 м
Стоимость:
от 1175000 руб.

Планировка

Изображение

Комплектация

Комплектация делится на 2 категории:

1 – лайт (до -10 градусов):

  • стены из доски камерной сушки шириной 10 см,
  • пол и потолок 15 см,
  • утепление минвата,
  • ветрозащита,
  • фанера на полах 15 см, на стенах и потолках 6 см.

2 – полный (до -50 градусов):

  • стены из доски камерной сушки шириной 15 см,
  • пол и потолок 20 см,
  • утепление 5 см ппу+минвата,
  • ветрозащита,
  • фанера на полах 18 мм, на стенах и потолках 9 мм.

Базовая – включает в себя:

Стены, потолки и полы: фанера без покрытия.

Фасад:

  • доска четверть с покрытием;
  • имитация бруса с покрытием;
  • профлист RAL.

Кровля:

  • плоская с пвх мембраной;
  • скатная с профлистом или гибкой черепицей.
Пластиковые окна без ламинации.
Дверь металлическая климатическая.
С/у без сантехники.
Проводка и коммуникации скрытые в стенах с выводами внутрь.

Стандарт – включает в себя внутреннюю отделку:

Стены:

  • имитация бруса с покрытием;
  • декоративная фанера с покрытием;
  • декоративные панели.

Потолки:

  • имитация бруса;
  • натяжной потолок.

Пол:

  • кварцвинил;
  • ламинат.

Фасад:

  • доска четвертьcпокрытием;
  • имитация бруса с покрытием;
  • профлистRAL.

Кровля:

  • плоская с пвх мембраной;
  • скатная с профлистом или гибкой черепицей.
Пластиковые окна без ламинации.
Дверь металлическая климатическая.
С/у с отделкой стен и потолка без сантехники.
Проводка и коммуникации скрытые в стенах с выводами внутрь.

Комфорт – включает в себя:

Стены:

  • имитация бруса с покрытием;
  • декоративная фанера с покрытием;
  • декоративные панели.

Потолки:

  • имитация бруса;
  • натяжной потолок.

Пол:

  • кварцвинил;
  • ламинат.

Фасад:

  • доска четвертьcпокрытием;
  • иммитация бруса с покрытием;
  • профлист RAL.

Кровля:

  • плоская с пвх мембраной;
  • скатная с профлистом или гибкой черепицей.
Пластиковые окна с ламинацией.
Дверь металлическая климатическая.
С/у с отделкой стен и потолка с сантехникой.
Коммуникации и электрика скрытые в стенах с выводами внутрь, розетками, светильниками.
Электрические теплые полы в зонах входа, с/у и кухни.
Отопление: электрообогреватели Baluс wifi.
Терраса большая с кровлей.

Премиум – включает в себя:

Стены:

  • имитация бруса с покрытием;
  • декоративная фанера с покрытием;
  • декоративные панели.

Потолки:

  • имитация бруса;
  • натяжной потолок.

Пол:

  • кварцвинил;
  • ламинат.

Фасад:

  • доска четвертьcпокрытием;
  • иммитация бруса с покрытием;
  • профлист RAL.

Кровля:

  • плоская с пвх мембраной;
  • скатная с профлистом или гибкой черепицей.
Пластиковые панорамные окна с ламинацией.
Дверь стеклянная.
С/у с отделкой стен и потолка с сантехникой.
Коммуникации и электрика скрытые в стенах с выводами внутрь, розетками, светильниками.
Электрические теплые полы в зонах входа, с/у и кухни.
Отопление: электрообогреватели Baluс wifi, либо водяной т.п.
Полное мебелирование дома.
Кондиционер.
Терраса.

Цены

Базовая лайт 1750000 руб. (25000 руб./м2)
Базовая полный 1430000 руб. (30434 руб./м2)
Стандарт лайт 3200000 руб. (34782 руб./м2)
Стандарт полный 1630000 руб. (40217 руб./м2)
Комфорт 2140000 руб. (45652 руб./м2)
Премиум 2550000 руб. (54347 руб./м2)